2405 Acorn Point
Victoria (MN) 55386
$674,900
Closed
StatusClosed
Beds6
Baths4
Living Area4147
YR2008
School District110
DOM51
Public Remarks
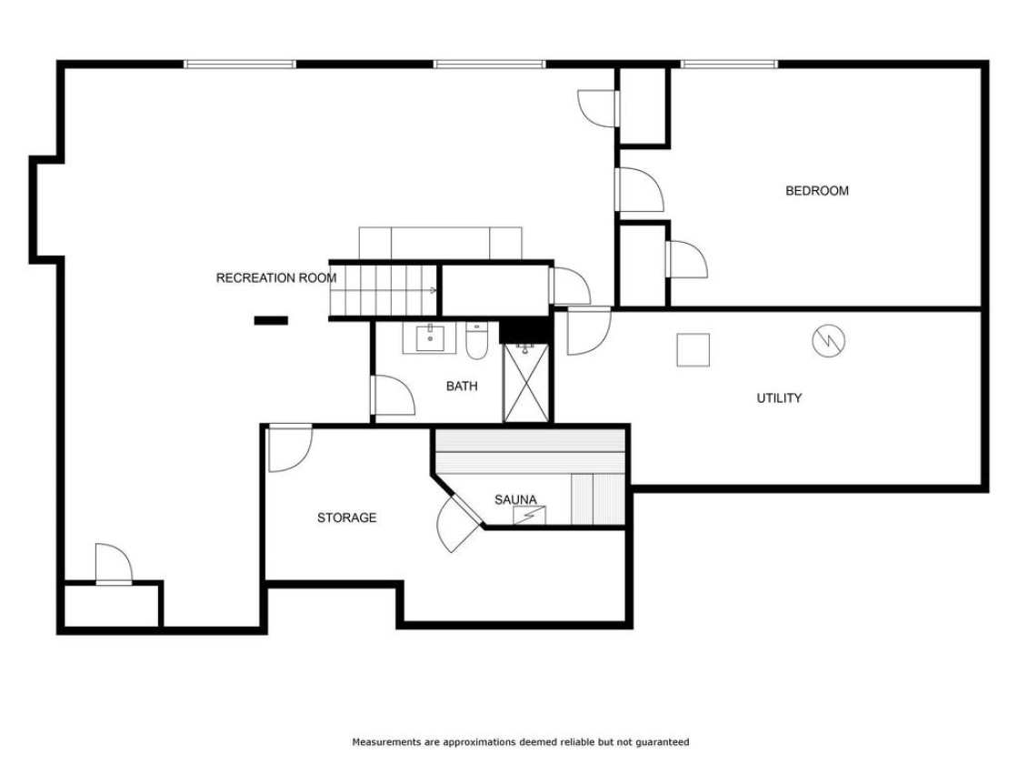
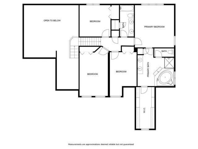
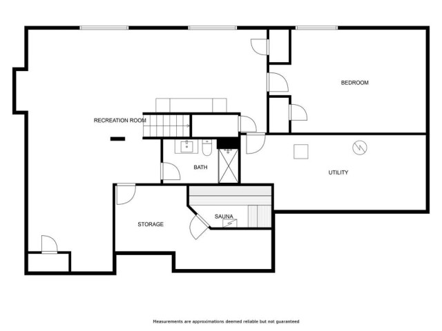
Beautiful 6 bd , 4 ba home on quiet Cul de Sac ! Vaulted foyer & family room , large open kitchen ,
bedroom , laundry on the main ! 4 bedrooms up including a primary suite & second full bath !! Large
finished basement with 6th bedroom , family room , sauna & plenty of storage ! 3 car attached garage !
Over 4000 fn sq ft ! Spacious & pristine lot with deep covered front porch & large back deck !
Association Information
Association Fee:
155
Assoc Fee Includes:
Array
Fee Frequency:
Quarterly
Assoc Mgmt Comp:
New Concepts
Assoc Mgmt Co Phone:
952-922-2500
Quick Specifications
Price :
$674,900
Status :
Closed
Property Type :
Residential
Beds :
6
Year Built :
2008
Approx. Sq. Ft :
4147
School District :
110
Taxes :
$ 7288
MLS# :
6760764
Association Fee :
155
Interior Features
Foundation Size :
1680
Fireplace Y:N :
1
Baths :
4
Bath Desc :
Full Basement,Private Primary,Main Floor 1/2 Bath,Sauna,Separate Tub & Shower,Upper Level Full Bath,Walk-In Shower Stall
Lot and Location
PostalCity :
Carver
Zip Code :
55386
Directions :
tbd
Complex/Development/Subd :
Lakebridge
Lot Description :
Many Trees
Lot Dimensions :
82x140x110x142
Road Frontage :
City Street
Zoning :
Residential-Single Family
School District :
110
School District Phone :
952-442-0600
Structural Features
Class :
Residential
Basement :
Drain Tiled, Egress Window(s), Finished, Full, Storage Space
Exterior :
Vinyl Siding, Wood Siding
Garage :
3
Accessibility Features :
None
Roof :
Age Over 8 Years, Architectural Shingle
Sewer :
City Sewer/Connected
Water :
City Water/Connected
Financial Considerations
DPResource :
Y
Foreclosure Status :
No
Lender Owned :
No
Potential Short Sale :
No
Latitude :
44.859119
MLS# :
6760764
Style :
Single Family Residence
Complex/Development/Subd :
Lakebridge
Tax Amount :
$ 7288
Tax With Assessments :
7238.0000
Tax Year :
2025


